- Woonoppervlakte
- Circa 105 m²
- Perceeloppervlakte
- Circa 415 m²
- Bouwjaar
- Gebouwd in 1956
- Aantal kamers
- 5 kamers (3 slaapkamers)
Beilen is een aantrekkelijk en levendig dorp met alle basisvoorzieningen. De woning ligt zeer gunstig, op loopafstand van zowel het centrum als het NS-station, en is ook goed bereikbaar via de uitvalswegen N381 en A28. In Beilen zijn er verschillende basisscholen, een middelbare school en tal van sportvoorzieningen beschikbaar. Het natuurgebied Terhorsterzand en het Dwingelderveld liggen op loop- en fietsafstand, wat de omgeving perfect maakt voor wandelen, fietsen en mountainbiken.
BEGANE GROND
De entree geeft toegang tot de hal met toilet, kelder, meterkast en trapopgang. Vanuit de lichte woonkamer met houten vloer (ca. 29 m²) is er een open verbinding met de keuken (ca. 11 m²). De halfopen keuken is voorzien van inbouwapparatuur, waaronder een gaskookplaat, afzuigkap, koelkast, vaatwasser (uit 2024) en combi-magnetron (uit 2022). Aan de achterzijde van de woning bevindt zich een bijkeuken (ca. 7 m²) met aansluiting voor witgoed.
EERSTE VERDIEPING
Via de overloop bereik je drie slaapkamers (ca. 14 m², ca. 9 m² en ca. 6 m²) en een nette badkamer (ca. 5 m²). De badkamer is uitgerust met een douche, een tweede toilet, een wastafelmeubel en een designradiator. Daarnaast is er op deze verdieping een aparte wasruimte met een vaste kast. Vanuit de kleinste slaapkamer heb je toegang tot een balkon op het oosten.
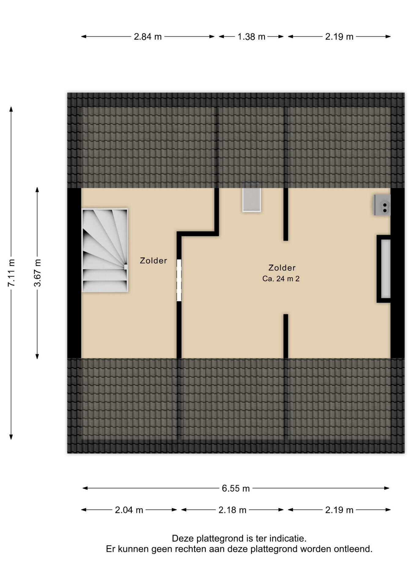
TWEEDE VERDIEPING
Via een vaste trap bereikt u de zolder, waar mogelijkheden zijn voor een 4e slaap-/hobbykamer, compleet met Velux-dakraam en voldoende bergruimte. Hier bevindt zich ook de opstelplaats voor de CV-ketel.
TUIN
De diepe en besloten achtertuin, die je niet snel zou verwachten op een locatie aan de rand van het centrum, ligt op het oosten en is toegankelijk via een achterom aan de achterzijde van het perceel. Een overkapping biedt beschutting, zodat je kunt genieten van de zonnige en groene tuin.
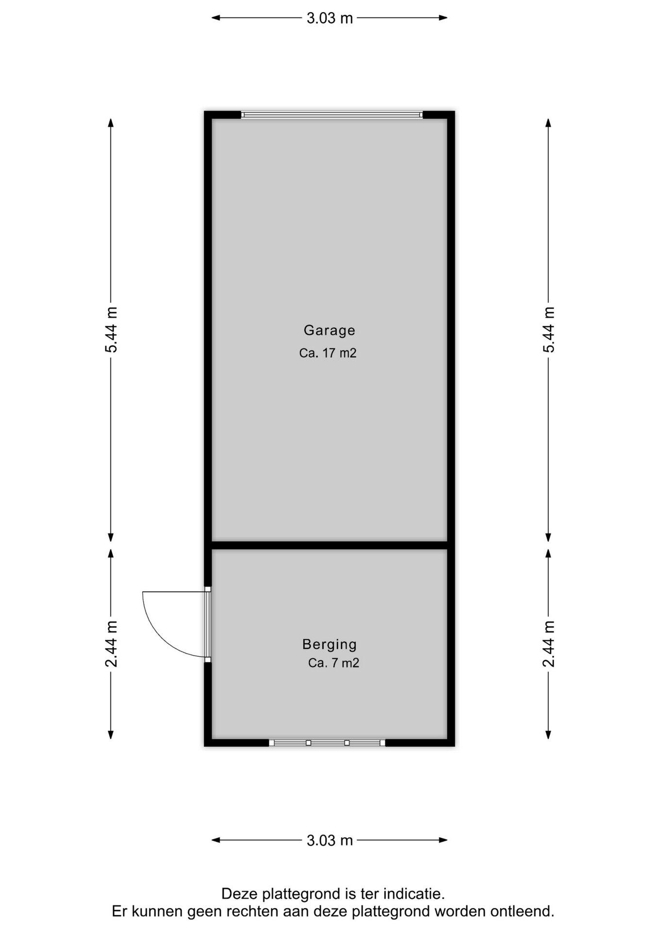
GARAGE
Aan de achterzijde van het perceel ligt de vrijstaande houten garage (ca. 17 m²) met daarbij een aangebouwde berging (ca. 7 m²) voor opslag. Onder de vrijstaande carport is er ruimte om twee auto's op eigen terrein te parkeren.
STERKE PUNTEN EN BIJZONDERHEDEN
- Ruime jaren '50 woning op een prachtige locatie;
- Drie slaapkamers en volop bergruimte;
- Schilderwerk uit 2023;
- Ruime kavel van 415 m²;
- Centraal gelegen, nabij voorzieningen en diverse natuurgebieden;
- Parkeergelegenheid op eigen terrein via de toegangsweg aan de achterzijde van het perceel;
- Een ideale gezinswoning!
Overdracht
- Vraagprijs
- € 350.000 k.k.
- Status
- Verkocht
- Aanvaarding
- In overleg
Bouw
- Object type
- Eengezinswoning, 2 onder 1 kapwoning
- Soort bouw
- Bestaande bouw
- Bouwjaar
- 1956
- Soort dak
- Zadeldak bedekt met pannen
Oppervlakte en inhoud
- Woonoppervlakte
- 105 m²
- Perceeloppervlakte
- 415 m²
- Inhoud
- 447 m³
- Overige inpandige ruimte
- 24 m²
- Externe bergruimte
- 24 m²
- Gebouwgeb. buitenruimte
- 7 m²
Indeling
- Aantal kamers
- 5 kamers (3 slaapkamers)
- Aantal badkamers
- 1 badkamer
- Badkamervoorzieningen
- Toilet, douche, wastafelmeubel
- Aantal woonlagen
- 3 woonlagen
- Voorzieningen
- Tv-kabel, buitenzonwering, rookkanaal, dakraam, glasvezel kabel, natuurlijke ventilatie
Energie
- Energielabel
- D
- Energielabel registratie
- 13-11-2025
- Isolatie
- Dakisolatie, muurisolatie, vloerisolatie, gedeeltelijk dubbel glas, hr glas
- Verwarming
- Cv-ketel
- Warm water
- Cv-ketel
- Cv ketel
- Remeha calente 28c combiketel gas gestookt uit 2015 (eigendom)
Buitenruimte
- Ligging
- Aan drukke weg, in woonwijk, vrij uitzicht
- Balkon / dakterras
- Balkon
- Tuin
- Achtertuin, voortuin
- Afmetingen achtertuin
- 275 m² (27.5 meter diep en 10 meter breed)
- ligging tuin
- Gelegen op het oosten en bereikbaar via achterom
Bergruimte
- Schuur / berging
- Vrijstaande houten berging
- Voorzieningen
- Voorzien van elektra
Garage
- Soort garage
- Vrijstaand hout
- Capaciteit
- 2 auto's
- Voorzieningen
- Elektra
- Isolatie
- Geen isolatie
Parkeergelegenheid
- Soort parkeergelegenheid
- Op eigen terrein
Energieverbruik in Beilen
Energielabel deze woning
Energielabel D
Publicatie energielabel: 13-11-2025
Stroomverbruik per jaar
(Gemiddelde twee onder een kap in Beilen)
Gasverbruik per jaar
(Gemiddelde twee onder een kap in Beilen)
* Cijfers zijn afkomstig van het CBS en bedoeld als indicatie en kunnen verschillen voor deze woning
Indicatie hypotheeklasten
Eigen inleg:
Spaargeld / overwaarde
Rente:
Laagste 10-jaars rente
Laagste 10-jaars rente
2,98% - Centraal Beheer Groen... - NHG
3,25% - Centraal Beheer Groen... - 80%
Laagste 20-jaars rente
3,29% - Centraal Beheer Groen... - NHG
3,52% - Centraal Beheer Groen... - 80%
Laagste 30-jaars rente
3,41% - Centraal Beheer Groen... - NHG
3,74% - Centraal Beheer Groen... - 80%
Hypotheek:
Bruto maandlasten: € 0 p/m
Netto maandlasten: € 0 p/m
Hoe berekenen we dit?
Het rentepercentage is gebaseerd op de laagste 10 jaars vaste rente voor één hypotheekdeel. De vermelde rente (2.98% met NHG) is gecontroleerd op 29-12-2025. Deze berekening is gebaseerd op een annuïteitenhypotheek die volledig wordt afgelost, waarbij de maandlasten gedurende de gehele looptijd gelijk blijven. De werkelijke rente en netto maandlasten kunnen variëren, afhankelijk van uw persoonlijke situatie en de hypotheekverstrekker. Raadpleeg een financieel adviseur voor een nauwkeurige berekening en advies. Aan deze berekening kunnen geen rechten worden ontleend; het dient enkel als indicatie.
Documentatie
Kadastrale kaart
Leefomgeving
Plattegrond perceel
Energielabel
Lijst van zaken
Vragenlijst-B
Plattegronden PDF
WOZ waarderapport
BAG uittreksel
Brochure
Bezoek onze website
Bezichtiging
Bod uitbrengen
Waardebepaling
Zoekopdracht
Alles downloaden
Zonnegrenzen bekijken
Op de kaart
Inwoners in Beilen
Cijfers voor postcodegebied 9411
- Totaal aantal inwoners
- 8420 inwoners
- Mannen
- 49%
- Vrouwen
- 51%
Inwoners in Beilen
Cijfers voor postcodegebied 9411
- tot 15 jaar
- 13%
- 15 tot 25 jaar
- 11%
- 25 tot 35 jaar
- 19%
- 45 tot 65 jaar
- 29%
- 65 en ouder
- 28%
Huishoudens in Beilen
Cijfers voor postcodegebied 9411
- Eenpersoons zonder kinderen
- 37%
- Meerpersoons zonder kinderen
- 33%
- Huishoudens zonder kinderen
- 70%
Huishoudens in Beilen
Cijfers voor postcodegebied 9411
- Huishoudens met één kind
- 7%
- Huishoudens met meerdere kinderen
- 23%
- Huishoudens met kinderen
- 30%
Woningen in Beilen
Cijfers voor postcodegebied 9411
- Woningen voor 1945
- 15%
- Woningen tussen 1945 en 1965
- 15%
- Woningen tussen 1965 en 1975
- 23%
- Woningen tussen 1975 en 1985
- 14%
- Woningen tussen 1985 en 1995
- 18%
Woningen in Beilen
Cijfers voor postcodegebied 9411
- Woningen tussen 1995 en 2005
- 6%
- Woningen tussen 2005 en 2015
- 6%
- Woningen na 2015
- 3%
- Huurwoningen
- 40%
- Koopwoningen
- 60%
Overige in Beilen
Cijfers voor postcodegebied 9411
- Gemiddelde WOZ waarde
- € 205.000,-
- Personen onder de 65 met uitkering
- 9%
Overige in Beilen
Cijfers voor postcodegebied 9411
- Adressen per km²
- 777
- Stedelijkheid (schaal 1 op 5)
- 40%
Korte feiten over Beilen
Beilen is een esdorp in de Nederlandse provincie Drenthe; het is de hoofdplaats van de gemeente Midden-Drenthe.
Groenhout Makelaars
Indien u vragen heeft of u wilt een bezichtiging inplannen, dan kunt u gebruik maken van het formulier hiernaast. Er zal daarna op korte termijn contact met u worden opgenomen.
Brink 4
9411 KR, Beilen
0593 23 21 21 midden-drenthe@groenhoutmakelaars.nl www.groenhoutmakelaars.nlContact opnemen
Dé makelaar in Midden-Drenthe
Bij Groenhout Makelaars Midden-Drenthe staan we klaar om je te ondersteunen bij de verkoop van je huidige woning of de aankoop van je droomhuis. Onze diensten beperken zich niet tot Midden-Drenthe; we zijn ook actief in omliggende gemeentes. We hechten veel waarde aan flexibiliteit, dus afspraken zijn ook mogelijk in de avonduren en op zaterdagen. Dankzij zijn achtergrond in de financiële sector beschikt Richard over uitgebreide kennis op financieel gebied en hij is uiteraard op de hoogte van alle marktontwikkelingen. Als creatieve makelaars streven we ernaar om gestelde doelen op originele wijze te realiseren. We zijn gepassioneerd en gedreven in alles wat we doen, en we kennen de vastgoedsector door en door. Onze aanpak gaat verder dan de standaard kantooruren en omvat puur ondernemerschap. We richten ons niet alleen op zakelijke aspecten, maar ook op sociale elementen. We zijn alert op nieuwe trends en passen deze toe in onze werkwijze. Onze expertise staat garant voor jouw gemak.
Het is onze passie en ons sterke punt om uitdagingen aan te gaan en zo tot een optimale dienstverlening te komen, van begin tot eind en zelfs daarna! Neem eens een kijkje bij onze recensies; wellicht nodigt dit je uit voor een vrijblijvend gesprek?
Nieuwste reviews
-
Hendrik Reindersweg 28 25
Goede en deskundige makelaar, prima samenwerking en goede en duidelijke afspraken gemaakt.Makelaar denk goed mee in oplossingen
-
Ellen Nijland
Wij zijn ontzettend tevreden over Richard van Groenhout makelaars in Beilen. De communicatie was helder, snel en eerlijk. Hij en zijn team h...
-
Kalmoes 29
Goede service en deskundige verkoop begeleiding. Het team staat voor je klaar om alle vragen te beantwoorden en je te adviseren.